Trilocale in vendita

Milano, Via Ercole Ferrario - Aquileia
€ 480.000
3 locali 3 locali
70 Mq 70 Mq
1 bagno 1 bagno

Trilocale in vendita

Milano, Via Ercole Ferrario - Aquileia

Descrizione annuncio

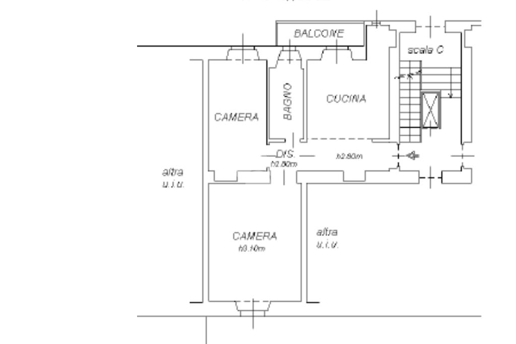
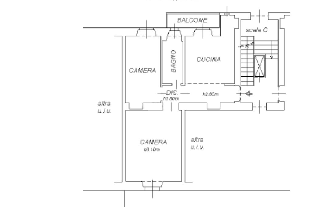
VIA ERCOLE FERRARIO - Situato nella splendida cornice di Corso Vercelli, a due passi da Piazzale Aquileia, si propone in vendita un luminoso trilocale.

La soluzione, che si estende su una superficie di 70mq, è così composta: entrando si viene accolti da un soggiorno dotato di balcone e cucina a vista con zona lavanderia. Passando alla zona notte troviamo due camere da letto, di cui una matrimonialen una singola e un bagno finestrato dotato di ampio box doccia.

La particolarità dell'immobile sta nella silenziosità e nella luminosità di cui esso gode.

Completa la proprietà una cantina e un solaio di pertinenza.

Libero subito.

La posizione strategica permette di godere di tutti i servizi e le comodità che la città offre, con ottimi collegamenti ai mezzi pubblici e vicinanza a negozi, ristoranti e spazi verdi.

Mostra tutto

Nelle vicinanze

Trasporto pubblico Trasporto pubblico
Pagano
Pagano
770 m
Sant'Agostino
Sant'Agostino
790 m
Milano Porta Genova
Milano Porta Genova
1,1 Km
Milano Nord Cadorna
Milano Nord Cadorna
1,4 Km
Piazzale Aquileia
Piazzale Aquileia
210 m
Ricariche auto elettriche Ricariche auto elettriche
A2A Pagano
730 m
A2A Isola Digitale S.Agostino
770 m
A2A Isola Digitale Pagano
790 m
Parcheggio Zenale
870 m
LIDL Milano Bezzi
920 m
Scuole Scuole
Istituto di Istruzione Superiore Nicola Moreschi
320 m
Scuola Secondaria di Primo Grado Mauri
470 m
scuola primaria G. Oberdan - C. A. Porzi
600 m
Scuola Primaria Giovanni Pascoli
650 m
Convitto nazionale Pietro Longone
670 m
Farmacia Farmacia
A.F.M. COMUNALE N.37
260 m
Farmacia
270 m
Washington del Dottor Celi Mario
410 m
Il benessere in città
490 m
A.F.M. Comunale 75
510 m
Ospedali Ospedali
Casa di Cura del Policlinico
280 m
Ospedale San Giuseppe
910 m
Poliambulatorio Sassi
1,1 Km
Clinica Columbus
1,3 Km
Istituto Scientifico Ospedale San Luca
1,7 Km
Supermercati Supermercati
Esselunga
380 m
Bio C Bon
450 m
Simply Market
470 m
punto SMA
500 m
Pam
520 m
Negozi Negozi
Negozi
110 m
Sigusta Sigma
260 m
Alina 19
330 m
Boutique Cifonette Milano
360 m
Carrefour Express
370 m
Bar Bar
ToTap Bar
260 m
Caffè del Sole
440 m
Green
500 m
Bar Debby
530 m
Caffecioccolata
540 m
Ristoranti Ristoranti
Antica Trattoria Salutati
220 m
Ristoranti
260 m
Cantun
300 m
Ai Muciaccia
350 m
La Bottarga
400 m
Mostra tutto

Caratteristiche

Rif.:
61178292
Piano:
Rialzato di 4 con ascensore
Totale piani:
4
Balconi:
1
Camere da letto:
2
Arredamento:
Assente
Mostra tutto
Prezzo Prezzo
€ 480.000
Rata mutuo Rata mutuo
€ 2.228 / mese
Spese annue Spese annue
€ 1.500
Proponi il tuo prezzoProponi il tuo prezzo

Classe Energetica

F
F
F
F
F
F
F
F
F
EP invernale del fabbricato:
EP estiva del fabbricato:
Anno di costruzione:
1940
Riscaldamento:
Centralizzato
Tipo impianto:
A radiatori
Tipo alimentazione:
Metano

Ti interessa visionare l'immobile?

Fissa un appuntamento  Fissa un appuntamento

Richiedi informazioni

Clicca su Leggi per aprire l'informativa
* Questi campi sono obbligatori

Calcola il tuo mutuo

Semplice e senza impegno
Anticipo

( % )
Mutuo

( % )

pochi semplici passi

inserisci i tuoi dati
Questionario completato
Grazie per aver richiesto un appuntamento senza impegno con un nostro Consulente del Credito e Assicurativo.

Hai inserito correttamente tutti i dati necessari e a breve riceverai una e-mail con un link da convalidare per inviare i tuoi dati.
Affiliato
Tc Wagner Sas
Via Sanzio, 30 20149 Milano (MI)

Il nostro staff


  • Nicola Tadolti
    Affiliato

  • Giulia Cesati
    Collaboratrice

  • Yasmine Mohsine
    Coordinatrice
Via Sanzio, 30 20149 Milano (MI)
Zona: De Angeli - Marghera - Wagner - Buonarroti
Mostra su mappa
Orari: dal lunedì al venerdi' dalle 09-00 alle 12.30 e dalle 14.30 alle 19.30 e oltre. Sabato dalle ore 9.00 alle ore 12.30 e dalle 14.30 alle 17.00. La domenica siamo disponibili su appuntamento
Affiliato
Tc Wagner Sas
Via Sanzio, 30 20149 Milano (MI)

2026 Tecnocasa Franchising S.p.A. - P. IVA 08365160152 - Via Monte Bianco 60/A 20089 Rozzano (MI). Ogni agenzia ha un proprio titolare ed è autonoma. Privacy policy | Policy utilizzo | Cookie policy